Objektart
Adresse
Objektdaten
Informationen
Ausstattung
Details
DIE VERMIETUNG ERFOLGT SEITENS DER EIGENTÜMER NUR AN BERUFSTÄTIGE ODER RENTNER!!!
Bitte berücksichtigen sie, dass die Wohnung nur an max. 2 Person vermietet wird. Wir bitten zunächst von telefonischen Anfragen Abstand zu nehmen. Bitte senden sie uns zunächst ihr vollständig ausgefülltes Anfrageprofil zu (inkl. Angabe über Berufstätigkeit - Einkommenssituation, Anzahl der Personen), wir werden uns dann mit ihnen zur Abstimmung eines Besichtigungstermines in Verbindung setzen.
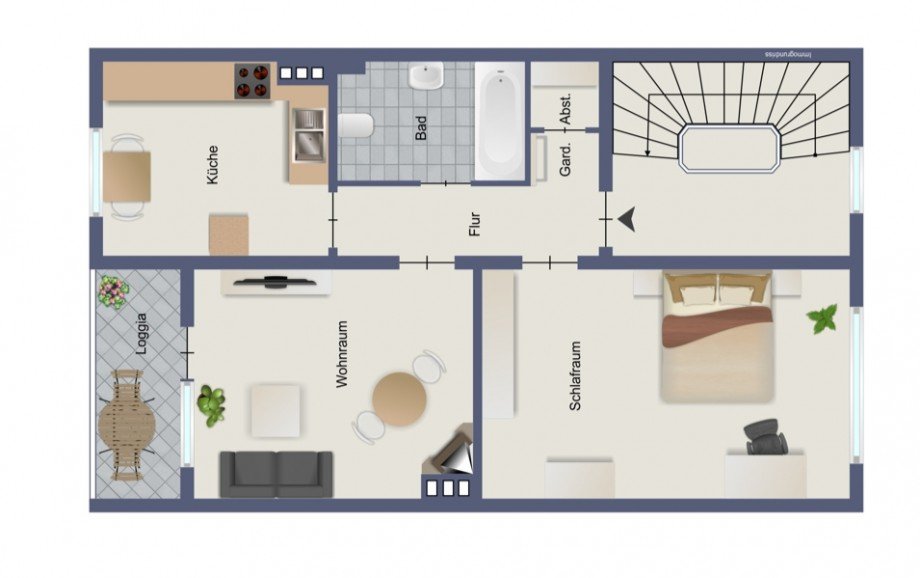
Diese helle Etagenwohnung befindet sich in ruhiger Lage von Düren-Birkesdorf - in unmittelbarer Nähe zum Krankenhaus Birkesdorf - in einem im Jahre 1962 erbauten und in den späteren Jahren renoviertem 2-Familienhaus. Die Wohnung ist ideal für 2 Person, befindet sich im 1. Obergeschoss und verfügt über ein großes Wohnzimmer, 1 Schlafzimmer mit Zugang zum Balkon in Süd-West-Lage, ein Wannenbad und kleine Wohnküche. Die Beheizung erfolgt über eine Öl-Zentralheizung (Abrechnung über Brunata). Das Warmwasser im Bad wird über einen vollelektronischen Durchlauferhitzer bereitet. Haus verfügt über keinen Aufzug! Die Wohnung ist komplett Belagfrei übergeben. Die Anfangsrenovierung erfolgt durch den Mieter nach seinen persönlichen Vorstellungen. Die Übergabe / Rückgabe erfolgt in unrenoviertem, ordentlichen und besenreinen Zustand erfolgt.
Fotos des Innenbereiches können leider, zur Wahrung der Privatsphäre der aktuellen Mieter, nicht bereitgestellt werden.
Die angebotene Wohnung steht ab 01.07.2026 zur Verfügung. Die Nebenkostenvorauszahlungen wurden für einen 2-Personenhaushalt kalkuliert.
Haustiere (Hunde/Katzen) sind leider nicht möglich!
DIE VERMIETUNG ERFOLGT SEITENS DER EIGENTÜMER NUR AN BERUFSTÄTIGE ODER RENTNER!!!
° Beheizung über Öl-Zentralheizung
° Warmwasser über DHE (Küche Kochenwassergerät)
° Wände und Böden belagfrei
° großzügige doppelverglaste Fenster im Wohn-, dem Schlafzimmer und der Küche (mit Rollladen)
° sep. Kellerraumanteil (ca. 5 m²)
° Gemeinschaftswaschkeller mit Stellplatz für Waschmaschine und Trockner
° ausreichend Parkmöglichkeiten auf der Straße (Anwohnerparkausweis nötig)
Inmitten von Düren. Die Innenstadt sind nur ein paar Minuten entfernt. Diverse Geschäfte des täglichen Bedarf´s befinden sich in direkter Nähe.
Infrastruktur (im direktem Umfeld):
Apotheke, Lebensmittel-Discount, Allgemeinmediziner, Kindergarten, Grundschule, Gymnasium, Gesamtschule, Öffentliche Verkehrsmittel
Alle Angaben sind ohne Gewähr und basieren ausschließlich auf Informationen, die uns von den Eigentümern / Verkäufern übermittelt wurden. Wir übernehmen keine Gewähr für die Richtigkeit und Vollständigkeit dieser Angaben (Baujahr, Flächenangaben, Art und Erstellungsjahr / Einbaujahr der technischen Ausstattungen usw.). Der Zwischenverkauf bleibt vorbehalten.
Unser Service für Sie als Verkäufer oder Vermieter: Wir ermitteln kostenfrei den Marktwert Ihre Immobilie, überlegen mit ihnen zusammen, welche Vermarktungsstrategie für Ihr Objekt am sinnvollsten ist und stehen Ihnen auch über den Notartermin bis hin zur Übergabe des Objektes an die neuen Eigentümer zur Seite.
Großgart Immobilien OHG steht als Maklerunternehmen mit seinen Mitarbeitern und Kollegen für die Werte Seriosität, Zuverlässigkeit und Diskretion. Unser bundesweites Netzwerk IVD ermöglicht es uns, Verkäufer bzw. Vermieter und Interessenten bestmöglich zusammenzuführen. Kommen Sie einfach bei uns vorbei, rufen Sie uns an oder senden Sie uns eine E-Mail - wir freuen uns, Sie kennenzulernen.
Erste hilfreiche Tipps erhalten Sie auf unserer Homepage: www.grossgart-immobilien.de
Wir weisen darauf hin, dass die von uns weitergegebenen Objektinformationen, Unterlagen, Pläne etc. vom Veräußerer bzw. Vermieter stammen. Eine Haftung für die Richtigkeit oder Vollständigkeit der Angaben übernehmen wir daher nicht. Es obliegt daher unseren Kunden, die darin enthaltenen Objektinformationen und Angaben auf ihre Richtigkeit hin zu überprüfen. Im Fall des Kaufs/Anmietung (nur gewerbliche Objekte) der Immobilie, hat der Käufer/Mieter die im Exposé ausgewiesene Provision an die Großgart Immobilien OHG zu zahlen. Die Provision ist mit Rechtswirksamkeit des notariellen Kaufvertrages bzw. eines Mietvertrages (gewerbliche Vermietung) fällig.
Maklervertrag: Sie schließen mit Großgart Immobilien OHG einen provisionspflichtigen Maklervertrag, wenn Sie in Kenntnis der Provisionspflicht unsere Leistungen in Anspruch nehmen.
Widerrufsrecht: Ihr Widerrufsrecht ist in §355 des Bürgerlichen Gesetzbuchs (BGB) geregelt und schützt Sie als Verbraucher vor vertraglichen Bindungen. Sie, als Verbraucher, haben das Recht, binnen vierzehn Tagen ohne Angabe von Gründen diesen Vertrag zu widerrufen.
Ansprechpartner
vermietung@grossgart-immobilien.de
Energieausweis (Bedarfsausweis)
155,80 kWh / (m²*a) Endenergiebedarf
155,80 kWh / (m²*a) Endenergiebedarf
155,80 kWh / (m²*a) Endenergiebedarf
Weitere Informationen
| Wesentlicher Energieträger | Öl |
| Energieausweis gültig bis | 2036-04-14 |
| Energieausweis Jahrgang | ab dem 1.5.2014 |
| Energieausweis Werteklasse | E |
| Energieausweis Baujahr | 2003 |
| Energieausweis Gebäudeart | Wohngebäude |
| Heizung | Zentralheizung |
| Befeuerung | Öl |
Ich bin damit einverstanden, dass mir Karten von Google angezeigt werden. Es gelten die Datenschutzbedingungen von Google (https://policies.google.com/privacy).
Ich bin einverstanden
