Objektart
Adresse
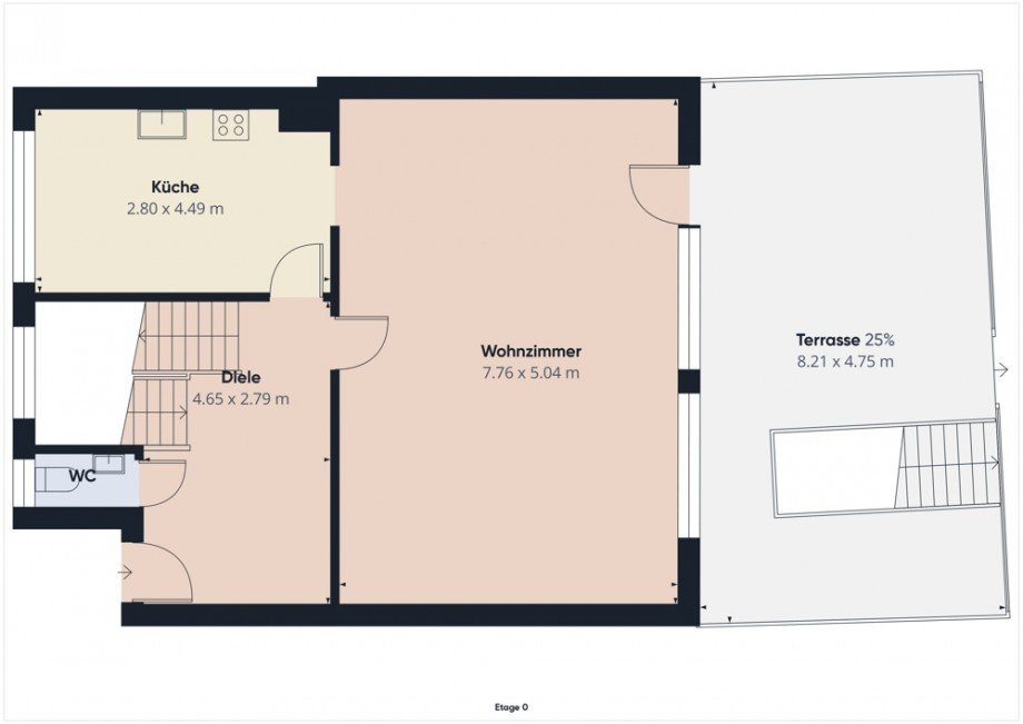
Objektdaten
Informationen
Details
Leider breits verkauft!
Die Immobilie wurde 1978 in konventioneller Massivbauweise errichtet und befindet sich in einem gepflegten Allgemeinzustand, die Ausstattung entspricht im Wesentlichen dem Stand des Baujahres. Die Fenster sind aus Holz mit Isolierverglasung, die Ölzentralheizung wurde 2012 erneuert.
Das Grundstück ist rd. 8 m breit und auch von der rückwärtigen Cäcilienstr. erschlossen. Eine Wohnbebauung kann gemäß eines gültigen Bebauungsplanes erfolgen. Derzeit befindet sich dort eine PKW-Garage und alte Stallungsgebäude.
Die Übergabe an die neuen Eigentümer kann zeitnah erfolgen.
Die Immobilie befindet sich im Dürener Stadtteil Merken. In wenigen Fahrminuten erreichen Sie die Kreisstadt Düren oder die Autobahn A4. Merken selbst verfügt über zwei Kindergärten und eine Grundschule, alle weiterführenden Schulen in Düren sind mit öffentlichen Verkehrsmittel gut zu erreichen. Nur rd. 2 Kilometer entfernt ist u.a. ein großes REWE-Center, Aldi, Lidl, DM ein Hornbach-Baumarkt usw. sowie eine Haltestelle der Rurtalbahn.
Alle Angaben sind ohne Gewähr und basieren ausschließlich auf Informationen, die uns von den Eigentümern / Verkäufern übermittelt wurden. Wir übernehmen keine Gewähr für die Richtigkeit und Vollständigkeit dieser Angaben (Baujahr, Flächenangaben, Art und Erstellungsjahr / Einbaujahr der technischen Ausstattungen usw.). Der Zwischenverkauf bleibt vorbehalten.
Unser Service für Sie als Verkäufer oder Vermieter: Wir ermitteln kostenfrei den Marktwert Ihre Immobilie, überlegen mit ihnen zusammen, welche Vermarktungsstrategie für Ihr Objekt am sinnvollsten ist und stehen Ihnen auch über den Notartermin bis hin zur Übergabe des Objektes an die neuen Eigentümer zur Seite.
Großgart Immobilien OHG steht als Maklerunternehmen mit seinen Mitarbeitern und Kollegen für die Werte Seriosität, Zuverlässigkeit und Diskretion. Unser bundesweites Netzwerk IVD ermöglicht es uns, Verkäufer bzw. Vermieter und Interessenten bestmöglich zusammenzuführen. Kommen Sie einfach bei uns vorbei, rufen Sie uns an oder senden Sie uns eine E-Mail - wir freuen uns, Sie kennenzulernen.
Erste hilfreiche Tipps erhalten Sie auf unserer Homepage: www.grossgart-immobilien.de
Wir weisen darauf hin, dass die von uns weitergegebenen Objektinformationen, Unterlagen, Pläne etc. vom Veräußerer bzw. Vermieter stammen. Eine Haftung für die Richtigkeit oder Vollständigkeit der Angaben übernehmen wir daher nicht. Es obliegt daher unseren Kunden, die darin enthaltenen Objektinformationen und Angaben auf ihre Richtigkeit hin zu überprüfen. Im Fall des Kaufs/Anmietung (nur gewerbliche Objekte) der Immobilie, hat der Käufer/Mieter die im Exposé ausgewiesene Provision an die Großgart Immobilien OHG zu zahlen. Die Provision ist mit Rechtswirksamkeit des notariellen Kaufvertrages bzw. eines Mietvertrages (gewerbliche Vermietung) fällig.
Maklervertrag: Sie schließen mit Großgart Immobilien OHG einen provisionspflichtigen Maklervertrag, wenn Sie in Kenntnis der Provisionspflicht unsere Leistungen in Anspruch nehmen.
Widerrufsrecht: Ihr Widerrufsrecht ist in §355 des Bürgerlichen Gesetzbuchs (BGB) geregelt und schützt Sie als Verbraucher vor vertraglichen Bindungen. Sie, als Verbraucher, haben das Recht, binnen vierzehn Tagen ohne Angabe von Gründen diesen Vertrag zu widerrufen.
Ansprechpartner
Telefax: 0049242115087
info@grossgart-immobilien.de
Energieausweis (Bedarfsausweis)
213,80 kWh / (m²*a) Endenergiebedarf
213,80 kWh / (m²*a) Endenergiebedarf
213,80 kWh / (m²*a) Endenergiebedarf
Weitere Informationen
| Wesentlicher Energieträger | Öl |
| Energieausweis gültig bis | 2035-11-19 |
| Energieausweis Jahrgang | ab dem 1.5.2014 |
| Energieausweis Werteklasse | G |
| Energieausweis Baujahr | 2012 |
| Energieausweis Gebäudeart | Wohngebäude |
| Heizung | Zentralheizung |
| Befeuerung | Öl |
Ich bin damit einverstanden, dass mir Karten von Google angezeigt werden. Es gelten die Datenschutzbedingungen von Google (https://policies.google.com/privacy).
Ich bin einverstanden
